Paphos Property Unique Luxury Villas

  • €655,000
  • 12947
  • Property ID
  • Cyprus Villas, Houses
  • Property Type
  • 3
  • Bedrooms
  • 2.5
  • Bathrooms
  • 175

Details

Updated on January 9, 2025 at 9:15 am
  • Property ID: 12947
  • Price: €655,000
  • Property Size: 175 m²
  • Bedrooms: 3
  • Bathrooms: 2.5
  • Property Type: Cyprus Villas, Houses
  • Property Status: Sold

Description

12947

Project Description

A Unique Development characterized by appealing modern architecture with spacious and comfortable areas in green surroundings. The properties are ingeniously blending the use of white finish and fair face concrete with decorative walls featuring concrete blocks. Scenic Sea Views and walking distance to the Beach and amenities.

DISTANCES

  • Airport 17 km
  • Beach 500 m
  • Supermarket 500 m
  • Pharmacy 3 km

INTERNAL FEATURES

  • Solid Iroko Wood Entrance Door
  •  Imported Marble on Floors, Stairs and Bathrooms
  •  High Quality Laminate Wooden Kitchen Cupboards Doors and Wardrobes
  •  Granite Kitchen Worktops
  •  Natural Solid Oak Wood Parquet Floor in Bedrooms
  •  Double glazed windows with aluminum frames
  •  Hansgrohe mixers
  •  Duravit toilets with wall mounted Geberit flush system
  •  Provision for Air – Condition System 

EXTERNAL FEATURES

  • External walls will be partly on traditional stone cladding, wood cladding and fair face concrete
  • Karisto Flagstone on Verandas and balconies
  • Private Swimming Pool – (optional – extra cost)
  • Italian Mosaic Swimming Pool Tiles
  • Custom BBQ Area – (optional – extra cost)
  • Landscaped Garden with Irrigation system
  • Private Parking area
  • Balustrade of Laminated Glass
  • Solar system for heating water
  • Pressurized water system
  • Fully Air–Conditioning – (optional – extra cost)
  • Electrical appliances – (optional – extra cost)
  • Full furniture package – (optional – extra cost)

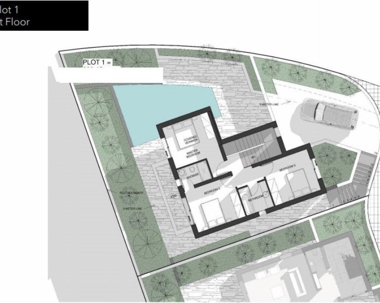
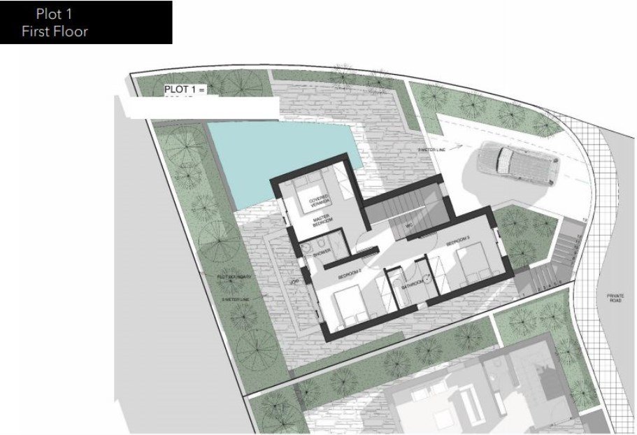
3 bedroom villa

  • Large Luxury Villa High-Quality Construction Contemporary Design Details
  • Mountain Views
  • Sea Views
  • Landscaped Garden
  • Car Parking

– Available Villa N9

Plot size: 276.05 m2

Internal covered area: 129.09 m2

Covered verandas: 11.69 m2

Uncovered verandas: 35.2 m2

*Delivery: 12 months from the date of signing the contract

Address

  • Address Paphos
  • City Paphos

Contact Information

View Listings
Antonis Michael
  • Antonis Michael

Enquire About This Property

Similar Listings

Compare listings

Compare
Antonis Michael
  • Antonis Michael