17702
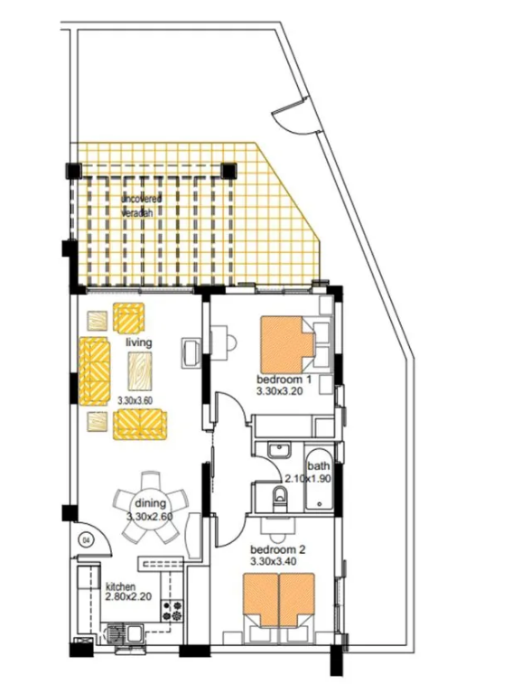
This 2-bedroom apartment is located in the Polis area of Paphos, surrounded by fragrant citrus groves that create a serene and picturesque setting. The property features two well-appointed bedrooms and one bathroom, within a well-designed residential project.Its convenient location places residents close to shops, restaurants, and entertainment venues.
EXTRA FEATURES
Internal area: 69 m2
Uncovered veranda: 22 m2
Compare listings
Compare