16829
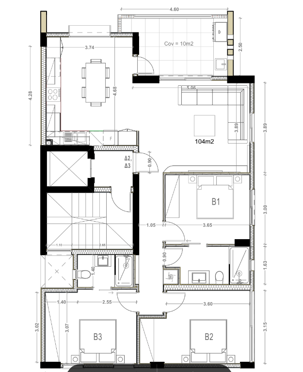
This modern 3-bedroom apartment is part of a stylish five-level residential development in Agios Ioannis, Limassol. Located in a quiet yet highly accessible neighborhood, it is just minutes from Limassol Marina, the city center, and key transport links. The apartment is turnkey-ready and features an open-plan kitchen and living area, three spacious bedrooms with built-in wardrobes, two bathrooms including one en-suite, covered verandas, and high-end finishes throughout.
EXTRA FEATURES
Floor: 2
Compare listings
Compare