14596
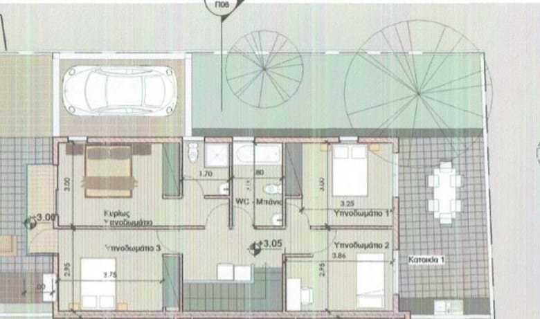
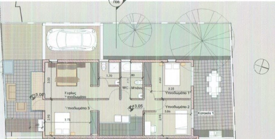
This modern 3 bedroom apartment is situated in prime Mouttagiaka area in Limassol in a modern complex just minutes away from the sea, the beach and all necessary amenities.
It is offering short drive to the city center and the highway.
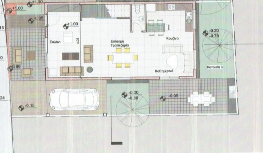
The apartment is comprising of an open plan dining and living room, kitchen, 3 bedrooms and 3 bathrooms, it is very bright and spacious.
Complex offering a common swimming pool and a children’s playground.
FEATURES
Internal area: 110 m2
Covered veranda: 37 m2
Compare listings
Compare