15120
The new project is located at an elevated location in Germasogeia area of Limassol, nestled within beautiful surroundings and panoramic views.
This gated building community consists of 4 double-storey blocks, all connected to a magnificent pool with a sun terrace and a playground, ensuring that both residents and visitors enjoy the spacious and, welcoming atmosphere.
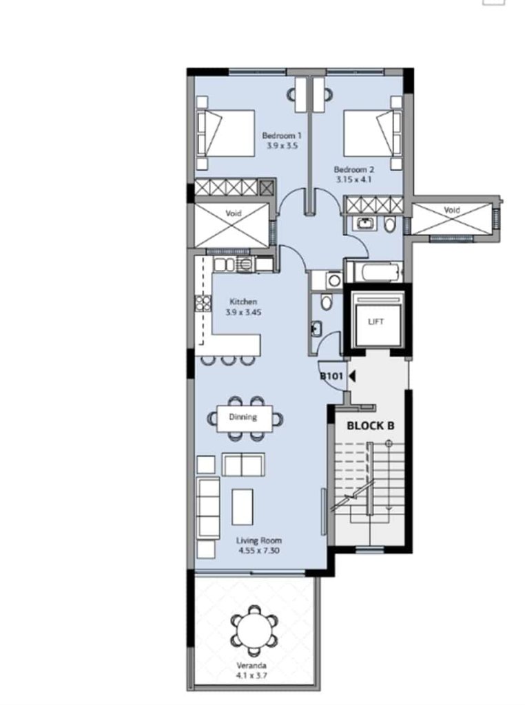
This residential gated community presents spacious 2 and 3 bedroom apartments with options for private gardens or rooftop terraces, along with underground parking and storage spaces for each apartment.
DISTANCES
Internal area: 104 m2
Covered veranda: 16 – 24 m2
Price: € 435.000 – 450.000 +VAT
Compare listings
Compare