16609
This modern business center is located in Agia Zoni, Limassol, one of the city’s most prominent commercial areas, offering excellent proximity to banks, department stores, retail shops, and key urban amenities. The building consists of 8 floors with a total covered area of 4,589 m², providing flexible open-plan office spaces and premium retail opportunities.
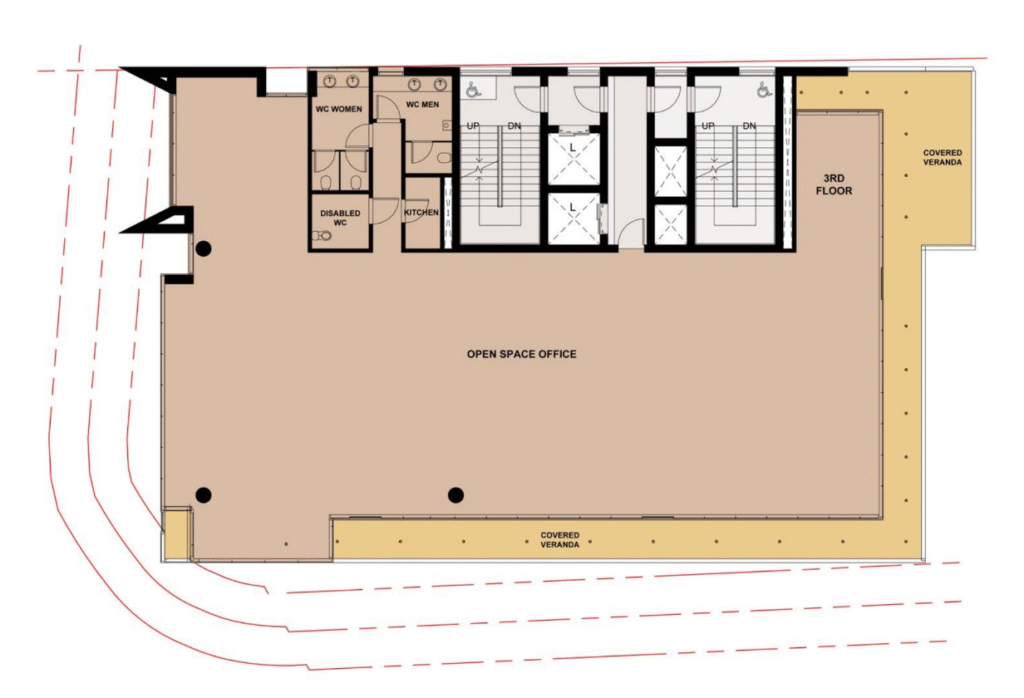
The ground floor features a stylish lobby with a double-height ceiling, a conference room, a retail unit with a mezzanine, four surface parking spaces, and a mechanical room. The building also includes a three-level underground parking facility with 68 parking spaces. Floors 1 through 7 offer spacious open-plan offices, each equipped with modern kitchenettes and bathrooms.
EXTRA FEATURES
Internal area: 4.589 m2
Underground parking: 3.556 m2
Plot size: 1.631 m2
Compare listings
Compare