Limassol Property Business Center

  • €6,000,000
  • 13494
  • Property ID
  • Offices
  • Property Type
  • 1580

Details

Updated on December 21, 2024 at 11:31 pm
  • Property ID: 13494
  • Price: €6,000,000
  • Property Size: 1580 m²
  • Property Type: Offices
  • Property Status: Sold

Description

13494

This business center is exceptionally positioned in the area of Polemidia, on one of the main commercial roads of Limassol, offering high visibility from all sides.

Furthermore, this modern and luxurious commercial building is located close to Limassol’s central business district, surrounded by an array of commercial offices, financial institutions and a large selection of showrooms. It has direct access to the city center, the seafront, the Limassol Marina, the commercial port and the motorway.

DISTANCES

1.5 km from the Paphos/Nicosia/Larnaca main motorway

3 km from the Limassol Marina

5.5 km from Limassol Main Commercial Port

6 km from new Limassol Casino

First impressions are paramount to any high calibre business, thus the high-quality exterior and interior finishes of the building, from the building’s unique architectural design, the Italian marble adoring the lobby and foyer areas and high speed luxury elevator, do exactly that, offer a ‘great first impression’ for your business.

Designed to cater for today’s business needs, the project provides open spaces giving a light and airy working environment, with floor to ceiling windows offering panoramic views across the city, helping to stimulate creativity and productivity.

FEATURES

The basement garage area is equipped with a traffic control system including barriers. The entrance control is affected via remote controls.

High speed elevator

Reinforced concrete frame with high yield steel reinforcement

Well designed modern façade

Ground floor parking spaces: 9

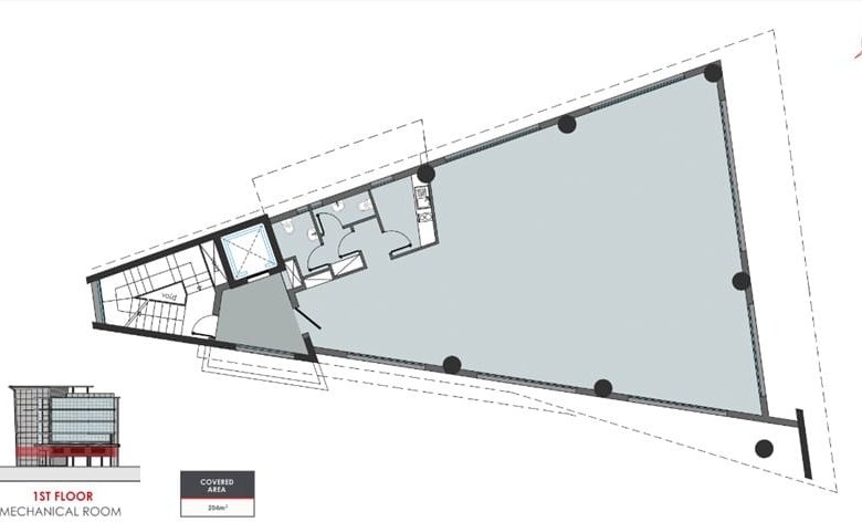
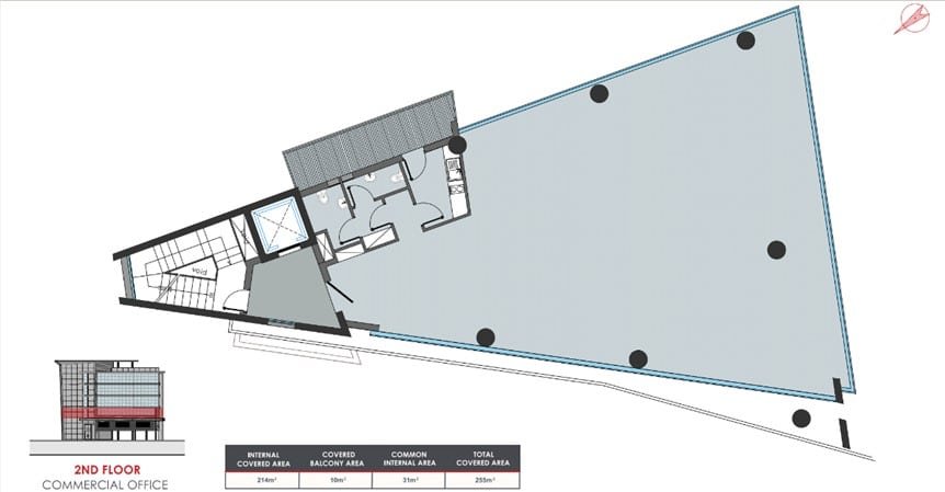
Internal Office Covered Areas: 204 – 214 m2

Total areas including lobby, underground parking

Subject to Vat

Address

  • Address Pano Polemidia
  • City Limassol

Contact Information

View Listings

Enquire About This Property

Floor Plans

image

Description:

image

Description:

image

Description:

image

Description:

image

Description:

image

Description:

Compare listings

Compare